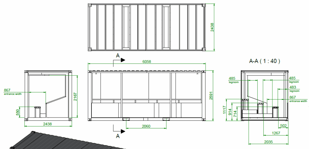
20′ Sanitärcontainer Dusche/WC [021582901]

Infos
Sitzplätze:
26 Personen
Container-Nr.:
TC20
Zustand:
Neuware
Einsatz:
Veranstaltungen und Events
Lieferbedingungen:
Sie suchen eine schnelle, praktische und komfortable Lösung für Zuschauerplätze bei Outdoor-Veranstaltungen? Der 20-Fuß Tribünencontainer ist die ideale Antwort auf Ihr Sitzplatzproblem, denn er bietet Platz für bis zu 26 Personen. Die Tribüne ist für den temporären oder dauerhaften Einsatz bei Sport- und Kulturveranstaltungen sowie anderen öffentlichen Veranstaltungen vorgesehen. Sie kann sowohl im Innen- als auch im Außenbereich eingesetzt werden.
Weitere Details auf Anfrage
Mit zusätzlichen Ausstattungs- und Zubehöroptionen für unsere Bürocontainer bieten wir Ihnen weitere Möglichkeiten zur individuellen Anpassung an Ihren gewünschten Einsatzzweck. Unter anderem erhalten Sie bei uns bei Bedarf Außentreppen, Treppenhauscontainer und Vordächer. Eine vollständige Auflistung der möglichen Ausstattungsoptionen und die technische Beschreibung senden wir Ihnen auf Anfrage gerne zu.




Sie wissen nicht, wo Sie anfangen sollen?
Lassen Sie sich schnell, ganzheitlich und kompetent beraten. Wir gehen auf jede Frage mit Verständnis ein!
Baumann Raumcontainer weisen bezüglich ihrer Einsatzmöglichkeiten eine hohe Flexibilität und Vielfältigkeit auf:
Weiterhin lassen sich die Container zu kompletten Containeranlagen mit bis zu drei Stockwerken kombinieren und für vielfältige Anwendungsbereiche ausstatten und optisch anpassen – so bleiben keine Wünsche offen!

Wir bieten Ihnen nicht nur einen Container an
Rundum-Service
Unser Containerschutz – Ihre Vorteile
Ersatzteile & Zubehör
Von der Reparatur bis hin zur Modifikation
Qualitätssicherung
Qualitätskontrolle vor jedem Einsatz
Kompetente Beratung
Innovation trifft auf Qualität
Containerschutz
Unser Containerschutz – Ihre Vorteile
Nachhaltige Lebensdauer
Nachhaltige Lebensdauer von Containern von Baumann
Wir können auch Modulbau!
Mehr über Modulbau und seine Möglichkeiten erfahren auf baumannmodulbau.de

Ob neuwertige oder gebrauchte Container. Hier finden Sie weitere Aktionsangebote.